14537 Egon DriveSalado, TX 76571




Mortgage Calculator
Monthly Payment (Est.)
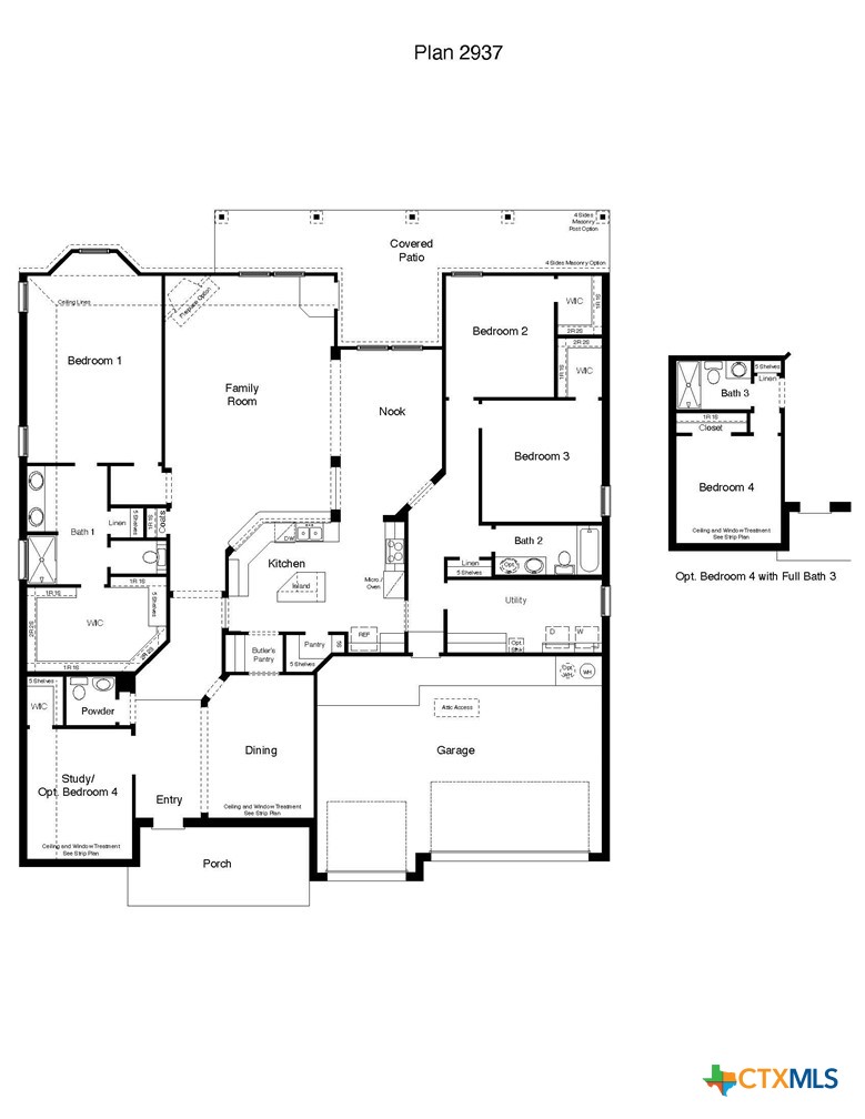
$2,304Step into the Waverly at Sterling Meadows, one of our floorplans featuring a seamless blend of modern design and functionality in Waco, TX. This floorplan has 3-4 bedrooms, 2.5 bathrooms, and a 3-car garage. You’ll also enjoy a large backyard with a covered patio and all of its 2,887 approximate square feet of comfortable living. Walking up the porch, you will step into the entry way and be greeted by the study with the option of a secondary room, the dining room, and a powder room for your guests. Continuing down the hall you will come to the kitchen and family room, through the family room is the primary bedroom. Escape from a long day to this primary bedroom and enjoy the attached bathroom with the double vanity sink and walk-in shower and the spacious walk-in closet. Enjoy the kitchen that is separated from the family room by a breakfast bar, with its island and pantry for storage. Through the kitchen you will find the nook and entry way to 2 secondary bedrooms that are carpeted and have walk-in closets. With easy access to the secondary bathroom and laundry room. Find security and control with our smart home technology, your home is at your fingertips through the Qolsys panel or your phone. You can also continue to build on your smart home collection easily through Bluetooth or Z-wave connectivity. Talk to us today and find your home in Sterling Meadows.
| 6 days ago | Listing first seen on site | |
| 6 days ago | Listing updated with changes from the MLS® |
Listing information is provided by Participants of the Central Texas MLS. IDX information is provided exclusively for personal, non-commercial use, and may not be used for any purpose other than to identify prospective properties consumers may be interested in purchasing. Information is deemed reliable but not guaranteed. Copyright 2026, Central Texas MLS.
Last checked: 2026-04-01 11:23 AM UTC