1070 Lonesome Oak DriveTemple, TX 76502




Mortgage Calculator
Monthly Payment (Est.)
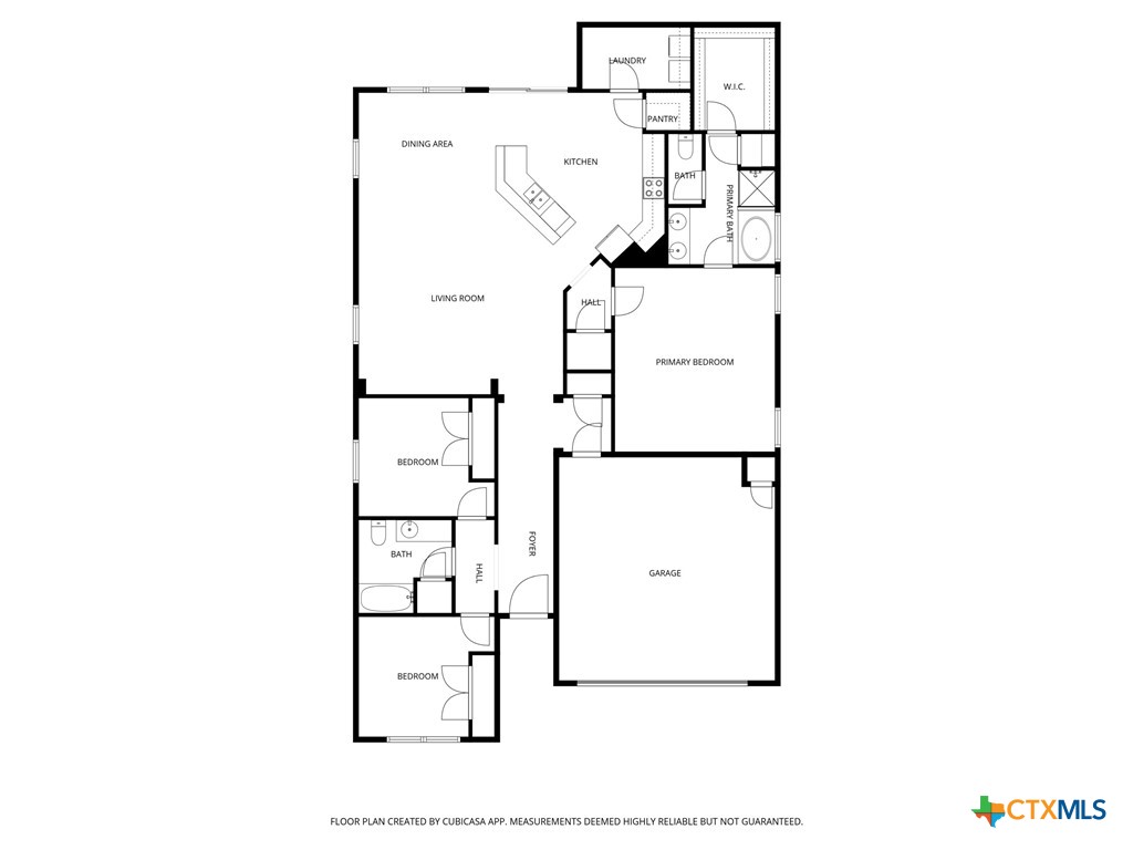
$1,186Welcome to the Village of Sage Meadows with this 3-bedroom, 2-bathroom home that is light, bright, and open! Perfect for game day activities and entertaining. Pride of ownership and care exemplify this home! The open kitchen is practical yet stylish! With plenty of space for entertaining and preparing meals! The primary bedroom provides a quiet retreat at the end of the day, with its large en-suite bathroom for added privacy. Two additional split bedrooms and a second full bath offer plenty of space for family, guests, or a home office. Living here means your kids could walk to school—both Pirtle Elementary School and Lake Belton Middle School are just around the corner. Roof is an impact resistant class 3 shingles installed July, 2025 plus fresh exterior paint. Full automatic lawn sprinkler system. Garage has a separate pull down screen (with door) that provides fresh air and protection from flying insects. Backyard has a pergola, wood deck, and gazebo for your family's enjoyment. Backyard backs up to green space and privacy. Beyond your doorstep, a host of nearby amenities are Freedom Park and Lake Belton is 10 minutes away for weekend boating, or fishing. Everyday errands are minutes away for Walmart and HEB, restaurants, lakeside views, hiking, and Crossroads park! Whether you're downsizing, starting fresh, or simply looking for a sanctuary this home offers a warm welcome wrapped in convenience. Schedule your tour today!
| a week ago | Price changed to $260,000 | |
| a week ago | Listing updated with changes from the MLS® | |
| a month ago | Listing first seen on site |
Listing information is provided by Participants of the Central Texas MLS. IDX information is provided exclusively for personal, non-commercial use, and may not be used for any purpose other than to identify prospective properties consumers may be interested in purchasing. Information is deemed reliable but not guaranteed. Copyright 2025, Central Texas MLS.
Last checked: 2025-11-06 01:07 PM UTC
Did you know? You can invite friends and family to your search. They can join your search, rate and discuss listings with you.