203 E Main StreetRosebud, TX 76570




Mortgage Calculator
Monthly Payment (Est.)
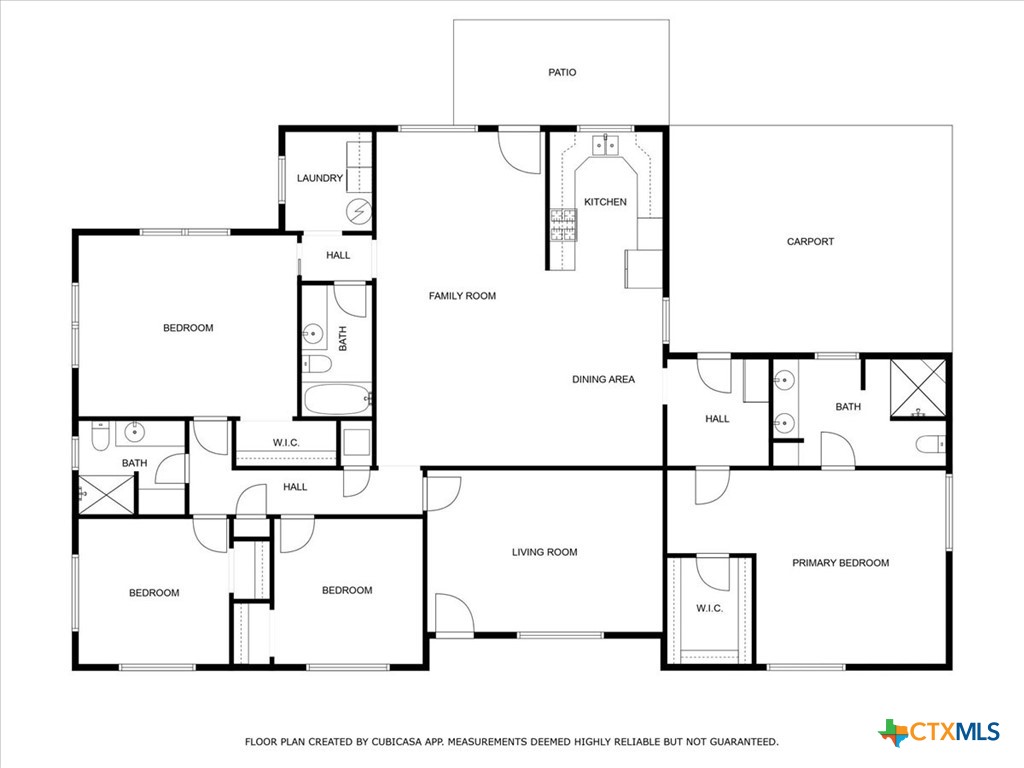
$1,141This 2,442 sq. ft. spacious corner-lot beauty isn’t just a house—it’s a home with heart. Boasting 4 bedrooms, 3 bathrooms, and a flex room, there’s space for everyone (and everything) you love. Step outside to an oversized backyard wrapped in privacy fencing, where huge, mature shade trees invite lazy afternoons and kids’ laughter. Since 2019, she’s been glowing up: new roof, new central heat & air, new gutters, new double-pane windows, and a brand new water heater. Basically… all the boring stuff is already done so you can focus on the fun stuff. The open living and dining area is just begging to host everything from Sunday fun-day to movie night. Love a little vintage flair? The guest bath features a cast iron tub that practically demands a bubble bath and a good book. All this is in Rosebud-Lott ISD, where the pace is slower, the neighbors wave, and the sweet tea flows freely. Seller’s motivated—so bring your offer and let’s make it yours!
| 3 months ago | Listing first seen on site | |
| 3 months ago | Listing updated with changes from the MLS® |
Listing information is provided by Participants of the Central Texas MLS. IDX information is provided exclusively for personal, non-commercial use, and may not be used for any purpose other than to identify prospective properties consumers may be interested in purchasing. Information is deemed reliable but not guaranteed. Copyright 2025, Central Texas MLS.
Last checked: 2025-11-10 02:47 AM UTC
Did you know? You can invite friends and family to your search. They can join your search, rate and discuss listings with you.